Το ζήτημα του “Καθορισμού προσωρινών χρήσεων εντός του πρώην Στρατοπέδου Μαρκοπούλου” αποτέλεσε το πρώτο θέμα στην ημερήσια διάταξη του Δημοτικού Συμβουλίου Χανίων, σε συνεδρίαση που πραγματοποιήθηκε σήμερα. Παρόντες ήταν μέλη της Πρωτοβουλίας Πολιτών για το Στρατόπεδο Μαρκοπούλου, φοιτητές και πολίτες, ενώ η συζήτηση χαρακτηρίστηκε από εντάσεις.
Η δημοτική αρχή πρότεινε τη χρήση 8 από τα 52 στρέμματα του πρώην στρατοπέδου ως προσωρινό χώρο στάθμευσης, μέχρι να ολοκληρωθούν οι διαδικασίες για τη δημιουργία Μητροπολιτικού Πάρκου. Ο χρονικός ορίζοντας για την ολοκλήρωση αυτών των διαδικασιών εκτιμήθηκε σε 3-5 χρόνια. Αντίθετα, η αντιπολίτευση κατηγόρησε τη δημοτική αρχή για πρόχειρο σχεδιασμό και έλλειψη διαβούλευσης με τους πολίτες.
Τελικά, περίπου στις 8 το βράδυ πραγματοποιήθηκε η ψηφοφορία, σύμφωνα με την οποία, θα δημιουργηθεί πάρκινγκ στο στρατόπεδο Μαρκόπουλου. Υπέρ ψήφισαν 27, μεταξύ των οποίων και η πρόεδρος της Δημοτικής Κοινότητας Χανίων, κατά ψήφισαν 12.
Διχαστική η διαμάχη για πάρκο ή πάρκινγκ λέει ο Δήμαρχος
Νωρίτερα, ο δήμαρχος Χανίων χαρακτήρισε “διχαστική” τη διαμάχη για το αν το πρώην στρατόπεδο θα χρησιμοποιηθεί αποκλειστικά ως πάρκο ή ως χώρος στάθμευσης. «Τα 52 στρέμματα μας επιτρέπουν να συγκεράσουμε χρήσεις, ώστε να είμαστε όλοι νικητές», δήλωσε χαρακτηριστικά.
Κατά την τοποθέτησή του ανέφερε:
«Χαίρομαι για το ενδιαφέρον που υπάρχει για το συγκεκριμένο θέμα. Ολοκληρώθηκε ένας σημαντικός κύκλος αυτής της μεγάλης προσπάθειας, που βασίζεται στους αγώνες όλων των δημοτικών αρχών τα τελευταία χρόνια. Για εμάς, η δημιουργία του καλύτερου πάρκου αστικού πρασίνου αποτελεί προτεραιότητα».
Παράλληλα, τόνισε ότι η δημιουργία προσωρινού χώρου στάθμευσης είναι αναγκαία, καθώς «ένα έργο απαιτεί κατασκευή. Μέχρι τότε, μπορούμε να χρησιμοποιήσουμε ένα μέρος του στρατοπέδου για στάθμευση, συγκεράζοντας τις ανάγκες που υπάρχουν».
Ο δήμαρχος πρότεινε ως επικεφαλής του σχεδιασμού για τη μελλοντική αξιοποίηση του στρατοπέδου τον αρχιτέκτονα Δημήτρη Αντωνακάκη. Όπως είπε, «θα συντονίσει μια ομάδα αρχιτεκτόνων και επιστημόνων για τη διαδικασία συμμετοχικού σχεδιασμού, η οποία θα περιλαμβάνει τη συμμετοχή των πολιτών». Ο ίδιος δεσμεύτηκε ότι «μέχρι τα τέλη Ιανουαρίου θα έχουν ολοκληρωθεί οι διαδικασίες εγγραφής του ακινήτου στο Υποθηκοφυλακείο».
Κριτική από την αντιπολίτευση
Η Ζωή Γεωργούλα εκ μέρους της δημοτικής παράταξης “Όνειρο Είναι τα Χανιά” εξέφρασε την κάθετη αντίθεσή της στην πρόταση της δημοτικής αρχής για την προσωρινή χρήση του Πάρκου Μαρκοπούλου ως χώρο στάθμευσης.
Κατήγγειλε τη διαδικασία ως πρόχειρη και αποσπασματική, επισημαίνοντας ότι η πρόταση αγνοεί σημαντικά ζητήματα, όπως η κυκλοφοριακή μελέτη και η περιβαλλοντική επιβάρυνση. Όπως ανέφερε, “η δημοτική αρχή φέρνει πιεστικά ένα θέμα για συζήτηση, χωρίς προηγουμένως να έχει καταθέσει μια ολοκληρωμένη διαχειριστική μελέτη για τις μόνιμες χρήσεις του χώρου”.
Σύμφωνα με την τοποθέτηση της παράταξης, η πρόταση όχι μόνο δεν λύνει το ζήτημα της στάθμευσης, αλλά δημιουργεί επιπλέον προβλήματα. “Η απουσία πρόβλεψης για τη διαχείριση του κυκλοφοριακού φόρτου και της περιβαλλοντικής επιβάρυνσης, σε μια περιοχή που ήδη αντιμετωπίζει έντονη πίεση, καθιστά την πρόταση ατελή και μη βιώσιμη”, σημείωσαν.
Επιπλέον, τόνισε ότι το Πάρκο Μαρκοπούλου αποτελεί για χρόνια διεκδίκηση πολιτών ως χώρος πρασίνου και δεν μπορεί να μετατραπεί σε χώρο στάθμευσης χωρίς ολοκληρωμένο σχεδιασμό. “Οι κάτοικοι της περιοχής του Άη Γιάννη αντιδρούν δικαιολογημένα, καθώς δεν υπήρξε καμία διαβούλευση ή παρουσίαση συγκεκριμένης μελέτης”, ανέφερε, προσθέτοντας ότι “η διαχείριση αυτή ενισχύει τις κοινωνικές αντιπαραθέσεις αντί να προάγει τη συναίνεση”.
Η κ. Γεωργούλα υπενθύμισε, επίσης, ότι προεκλογικά η δημοτική αρχή είχε αφαιρέσει την πρόβλεψη για δημιουργία χώρου στάθμευσης στο Πάρκο Μαρκοπούλου από το Σχέδιο Βιώσιμης Αστικής Κινητικότητας (ΣΒΑΚ), γεγονός που εγείρει ερωτήματα για την αλλαγή στάσης.
Καταλήγοντας, η Ζωή Γεωργούλα εκ μέρους της παράταξης “Όνειρο Είναι τα Χανιά” δήλωσε: “Δεν μπορούμε να υπερψηφίσουμε μια πρόταση που έρχεται χωρίς στρατηγικό σχεδιασμό, χωρίς συνοδά έργα και χωρίς τη διαβούλευση που θα διασφάλιζε συγκλίσεις. Οφείλουμε όλοι να υπηρετούμε τις ανάγκες της πλειοψηφίας των πολιτών, όχι να τις διαιρούμε με αποσπασματικές προτάσεις”.
Χ. Λουτσέτης: Ο κόσμος δεν έχει εμπιστοσύνη, καθώς γνωρίζει ότι ουδέν μονιμότερον του προσωρινού
Ο επικεφαλής της Λαϊκής Συσπείρωσης, Χαράλαμπος Λουτσέτης, άσκησε έντονη κριτική στη δημοτική αρχή. Επισήμανε ότι το θέμα των χρήσεων του στρατοπέδου παραμένει άλυτο εδώ και χρόνια, υπογραμμίζοντας ότι «οι πολίτες δεν έχουν πάρκα και παιδικές χαρές στις γειτονιές τους, ούτε σχολεία. Αντίθετα, βλέπουν μόνο ξενοδοχεία».
Αναφερόμενος στην προσωρινή χρήση του χώρου, δήλωσε: «Δεν υπάρχουν προσωρινά σχολεία, γιατί να υπάρξει προσωρινό πάρκινγκ; Ο κόσμος δεν έχει εμπιστοσύνη, καθώς γνωρίζει ότι ουδέν μονιμότερον του προσωρινού».
Επιπλέον, κατηγόρησε τη δημοτική αρχή για ασυνέπεια: «Προεκλογικά αφαιρέσατε τη χρήση του πάρκινγκ από το σχέδιο και τώρα την επαναφέρετε. Τότε δεν είχατε 65%, οι συσχετισμοί ήταν διαφορετικοί. Το πάρκινγκ δεν θα είναι προσωρινό. Ποιος δήμαρχος θα το ξεριζώσει στο μέλλον; Θα ξεσηκωθούν όλοι».
Η πρόταση της Τεχνικής Υπηρεσίας του Δήμου Χανίων
Η πρόταση της Τεχνικής Υπηρεσίας του Δήμου Χανίων για τον καθορισμό των προσωρινών χρήσεων του πρώην Στρατοπέδου Μαρκοπούλου, καθώς και η κατά πλειοψηφία απόφαση του Συμβουλίου της Δημοτικής Κοινότητας Χανίων, περιλαμβάνονται στην εισήγηση του Δημάρχου, Παναγιώτη Σημανδηράκη, στη συνεδρίαση του Δημοτικού Συμβουλίου.
Ειδικότερα, όπως αναφέρεται σχετικά:
“Σε συνέχεια της παραχώρησης του πρώην Στρατοπέδου Μαρκοπούλου στον Δήμο Χανίων, ζητήθηκε από την Τεχνική Υπηρεσία να προτείνει προσωρινές χρήσεις εντός του πρώην στρατοπέδου προκειμένου να αξιοποιηθεί για την κάλυψη των αυξημένων αναγκών των δημοτών της πόλης τόσο σε χώρους στάθμευσης όσο και κοινόχρηστους χώρους έως ότου γίνει η ολοκλήρωση της οριστικής αξιοποίησης των χώρου βάσει των τελικών μελετών και παρακαλούμε για την σύμφωνη γνώμη σας.
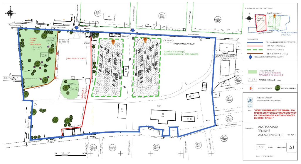
Στόχος της παρούσας εισήγησης αποτελεί η παρουσίαση και έγκριση από το Δημοτικό συμβούλιο Χανίων α) των εργασιών που έχουν εκτελεστεί στο δυτικό τμήμα του στρατοπέδου για την διαμόρφωση πάρκου και β) η πρόταση προσωρινής αξιοποίησης του ανατολικού τμήματος για τη διαμόρφωση προσωρινού χώρου στάθμευσης οχημάτων.”

Ιστορικό:
Το στρατόπεδο Μαρκοπούλου από το Μάϊο του 2023 έχει αποδοθεί τμηματικά στους πολίτες και τμήμα του έκτασης 20 στρεμμάτων έχει μετατραπεί σε κοινόχρηστο χώρο με χρήση πάρκου με ήπιες διαμορφώσεις.
Στο τμήμα 1 (δυτικό) έχουν τοποθετηθεί 4 μικρά όργανα εκγύμνασης υπαίθριου τύπου, μικρά όργανα παιδικής χαράς τα οποία δεν χρειάζονται ειδική κατασκευή υποστρώματος λόγω μικρού ύψους πρόσπτωσης. Στο τμήμα 1 επίσης έχουν τοποθετηθεί τραπεζόπαγκοι, κάδοι απορριμμάτων , έχει καθαριστεί το έδαφος από φυσικά εμπόδια, έχουν κλαδευτεί τα δέντρα και έχουν επίσης μπει στύλοι φωτισμού και μία μικρή ελαφριά περίφραξη από σύρμα που προστατεύει και διαχωρίζει τον κοινόχρηστο χώρο από το υπόλοιπο στρατόπεδο. Τον προηγούμενο μήνα έχει τοποθετηθεί και η υποδομή των ηλεκτρικών ποδηλάτων του Δήμου. Το τμήμα 1 λειτουργεί αυτή τη στιγμή αυτόνομα σαν πάρκο με ιδιαίτερη χρήση από τη γειτονιά αλλά και σαν χώρος υποδοχής διάφορων εκδηλώσεων του δήμου.
Στο τμήμα δύο προτείνεται η προσωρινή χρήση ως χώρος στάθμευσης χωρίς καμία εργασία διαμόρφωσης και χωρίς την τοποθέτηση ειδικών κατασκευών και σκληρών δαπέδων. Προτείνεται η χρήση της επάνω ανατολικής εισόδου για τα οχήματα. Μέσω του δρόμου ο οποίος είναι ήδη διαμορφωμένος τα οχήματα θα εισέρχονται και θα διαμοιράζονται είτε στον χώρο ανατολικά δεξιά δηλαδή της εισόδου είτε στο χώρο αριστερά δυτικά δηλαδή της εισόδου. Πρόκειται για δυο ορθογώνιους χώρους εμβαδού περίπου 4.000 τετραγωνικά ο καθένας οι οποίοι χωρίς την παραμικρή διαμόρφωση μπορούν να υποδεχτούν συνολικά περίπου 230 οχήματα. Να σημειωθεί ότι ο συγκεκριμένος χώρος χρησιμοποιούνταν και παλαιότερα ως στάθμευση αυτοκινήτων όταν ήταν εν λειτουργία το πρώην στρατόπεδο Μαρκοπούλου.
Εισερχόμενοι στο χώρο αριστερά υπάρχει ήδη υπόβαση από χαλίκι ενώ δυτικά το έδαφος είναι χωματώδες. Οι επισκέπτες του χώρου έχοντας αφήσει το όχημά τους μπορούν να κατευθυνθούν μέσω των δύο εισόδων στην οδό Μαλινού όπου εκεί σταθμεύει το λεωφορείο του αστικού ΚΤΕΛ και το ηλεκτρικό λεωφορείο που θα χρησιμοποιηθεί για τη συχνή εξυπηρέτηση και μεταφορά των κατοίκων στο κέντρο της πόλης και πίσω και ουσιαστικά θα εξυπηρετεί όσους σταθμεύουν εκεί.



